受付時間:平日9:00~18:00
MENU
条件から探す
マップから探す
お気に入り物件 お気に入り一覧
052-959-2888
受付時間:平日9:00〜18:00(土日祝休み)
メールフォームからのお問い合わせはこちら
LIST
現在の検索条件
日重ビル(にちじゅうびる)
広 さ 35.80坪(118.34㎡)
賃 料 268,500円(7,500円/坪)
共益費 125,300円(3,500円/坪)
階数 4F
駅 東別院駅 1分
所在地 名古屋市中区大井町3-15
竣工日 1985年3月31日
マップを表示
今池ガスビル
広 さ 35.81坪(118.37㎡)
賃 料 要確認
共益費 要確認
階数 2F
駅 今池駅 1分
所在地 名古屋市千種区今池1-8-8
竣工日 2005年3月1日
マルヤマビル
賃 料 297,223円(8,300円/坪)
共益費 109,400円(3,055円/坪)
階数 5F
駅 東成岩駅 5分
所在地 新潟県新潟市中央区米山3-1-63
竣工日 要確認
アイジーステーション
賃 料 670,000円(18,710円/坪)
共益費 50,000円(1,396円/坪)
階数 7F
駅 国際センター駅 3分名古屋駅 4分名古屋駅 4分
所在地 名古屋市中村区名駅4-2-13
竣工日 2006年4月1日
伏見第一ビル
賃 料 322,290円(9,000円/坪)
共益費 139,659円(3,900円/坪)
階数 -1F
駅 伏見駅 1分
所在地 名古屋市中区栄2-9-3
竣工日 1976年1月31日
(仮)京屋築地ビル
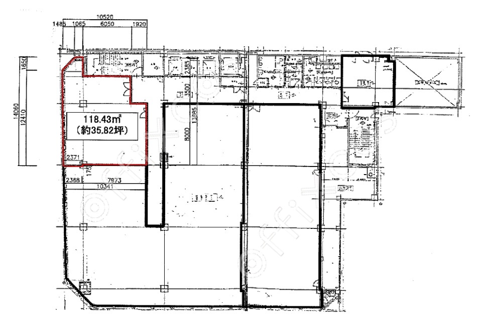
広 さ 35.82坪(118.41㎡)
駅 築地口駅 1分
所在地 名古屋市港区名港1-19-23
竣工日 1974年8月31日
名古屋日興證券ビル
階数 6F
駅 栄駅 7分
所在地 名古屋市中区栄3-2-3
竣工日 1974年9月1日
ラディアントⅢ
賃 料 200,000円(5,583円/坪)
駅 新栄町駅 9分
所在地 名古屋市中区新栄1-24-11
竣工日 1991年8月31日
賃 料 650,000円(18,146円/坪)
第2池田ビル
賃 料 250,740円(7,000円/坪)
駅 津駅 8分
所在地 三重県津市津市羽所町515番地
竣工日 1991年3月31日
清風ビル
広 さ 35.83坪(118.44㎡)
賃 料 376,215円(10,500円/坪)
共益費 143,320円(4,000円/坪)
駅 久屋大通駅 3分栄駅 8分
所在地 名古屋市中区丸の内3-21-25
竣工日 1984年3月1日
だいし海上ビルディング
所在地 新潟県新潟市新潟県新潟市東大通2-1-18
竣工日 1981年3月1日
TOP
お気に入り一覧