受付時間:平日9:00~18:00
MENU
条件から探す
マップから探す
お気に入り物件 お気に入り一覧
052-959-2888
受付時間:平日9:00〜18:00(土日祝休み)
メールフォームからのお問い合わせはこちら
LIST
現在の検索条件
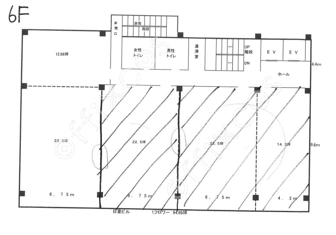
津フェニックス
広 さ 35.48坪(117.28㎡)
賃 料 要確認
共益費 113,784円(3,207円/坪)
階数 5F
駅 津新町駅 15分
所在地 三重県津市東丸之内33-1
竣工日 1993年10月31日
マップを表示
スタービル
広 さ 35.49坪(117.32㎡)
賃 料 110,000円(3,099円/坪)
共益費 2,000円(56円/坪)
階数 2F
駅 丸の内駅 4分
所在地 名古屋市中区錦1-2-16
竣工日 要確認
(旧)中日ビルディング
賃 料 568,443円(16,017円/坪)
共益費 188,132円(5,301円/坪)
階数 3F
駅 栄駅 1分栄駅 1分
所在地 名古屋市中区栄4-1-1
竣工日 1966年12月1日
松本本町第一生命ビルデイング
共益費 要確認
駅 松本駅 6分
所在地 長野県松本市中央2-1-27
竣工日 1984年10月31日
エフジー若宮ビル
賃 料 248,430円(7,000円/坪)
共益費 106,470円(3,000円/坪)
駅 矢場町駅 5分
所在地 名古屋市中区栄3-23-23
竣工日 1998年1月1日
大協土地ビル
賃 料 191,646円(5,400円/坪)
階数 6F
駅 浜松駅 3分
所在地 静岡県浜松市中央区砂山町353-3
竣工日 1969年5月1日
GS丸の内二丁目ビル(旧:日建丸の内ステーションビル)
広 さ 35.50坪(117.35㎡)
賃 料 300,000円(8,451円/坪)
階数 9F
駅 丸の内駅 1分
所在地 名古屋市中区丸の内2-16-23
竣工日 1997年5月1日
賃 料 231,481円(6,521円/坪)
共益費 50,000円(1,408円/坪)
賃 料 248,500円(7,000円/坪)
階数 7F
グランドビル
賃 料 284,000円(8,000円/坪)
共益費 71,000円(2,000円/坪)
階数 4F
駅 一社駅 8分上社駅 9分
所在地 名古屋市名東区社台3-230
竣工日 1988年2月28日
TOP
お気に入り一覧