受付時間:平日9:00~18:00
MENU
条件から探す
マップから探す
お気に入り物件 お気に入り一覧
052-959-2888
受付時間:平日9:00〜18:00(土日祝休み)
メールフォームからのお問い合わせはこちら
LIST
現在の検索条件
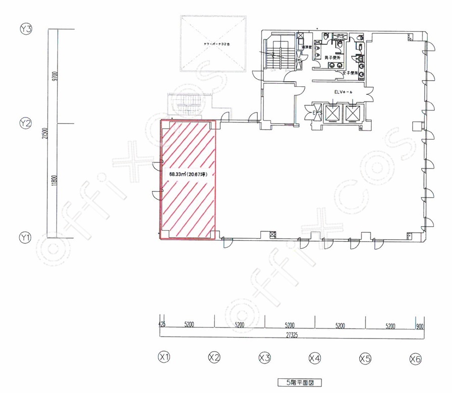
TOKAI日出町ビル(旧:静岡住友ビル)
広 さ 20.67坪(68.33㎡)
賃 料 要確認
共益費 要確認
階数 7F
駅 静岡駅 10分
所在地 静岡県静岡市葵区日出町1-2
竣工日 1967年8月31日
マップを表示
サン・栄三丁目ビル
賃 料 148,000円(7,160円/坪)
共益費 72,000円(3,483円/坪)
階数 -1F
駅 矢場町駅 8分栄駅 13分
所在地 名古屋市中区栄3-35-47
竣工日 1986年8月1日
イノフィス
広 さ 20.67坪(68.44㎡)
賃 料 174,000円(8,418円/坪)
共益費 54,000円(2,612円/坪)
階数 8F
駅 新栄町駅 3分
所在地 名古屋市中区新栄2-2-1
竣工日 1990年10月31日
階数 6F
賃 料 227,370円(11,000円/坪)
階数 4F
賃 料 206,700円(10,000円/坪)
階数 9F
錦中央ビル
賃 料 196,365円(9,500円/坪)
共益費 72,345円(3,500円/坪)
駅 久屋大通駅 2分
所在地 名古屋市中区錦3-5-27
竣工日 1987年5月31日
あいおいニッセイ同和損保静岡第一ビル
共益費 51,675円(2,500円/坪)
階数 5F
駅 静岡駅 7分
所在地 静岡県静岡市葵区栄町3-1
竣工日 1984年10月1日
賃 料 155,025円(7,500円/坪)
階数 3F
東海ビル
広 さ 20.68坪(68.38㎡)
賃 料 165,440円(8,000円/坪)
駅 国際センター駅 2分名古屋駅 6分
所在地 名古屋市中村区名駅4-3-10
竣工日 1972年4月1日
TOP
お気に入り一覧