受付時間:平日9:00~18:00
MENU
条件から探す
マップから探す
お気に入り物件 お気に入り一覧
052-959-2888
受付時間:平日9:00〜18:00(土日祝休み)
メールフォームからのお問い合わせはこちら
LIST
現在の検索条件
栗ビル(旧:小浅ビル)
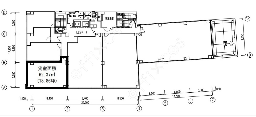
広 さ 18.85坪(62.31㎡)
賃 料 188,500円(10,000円/坪)
共益費 要確認
階数 9F
駅 栄駅 2分栄駅 2分
所在地 名古屋市中区栄4-2-10
竣工日 1974年11月30日
マップを表示
ジブラルタ生命長崎馬町ビル
賃 料 要確認
階数 2F
駅 諏訪神社前駅 2分
所在地 長崎県長崎市長崎県長崎市馬町57
竣工日 1974年2月28日
couleurs NOIR
賃 料 254,475円(13,500円/坪)
共益費 10,000円(531円/坪)
階数 1F
駅 千種駅 3分
所在地 名古屋市千種区内山3-18-5
竣工日 2023年9月1日
金沢大同生命ビル
階数 3F
駅 金沢駅 20分
所在地 石川県金沢市南町4-60
竣工日 1979年3月1日
5th F.P.S BILD
広 さ 18.86坪(62.34㎡)
賃 料 188,600円(10,000円/坪)
共益費 66,010円(3,500円/坪)
階数 7F
駅 久屋大通駅 1分
所在地 名古屋市中区丸の内3-19-23
竣工日 2001年8月23日
賃 料 226,400円(12,004円/坪)
共益費 56,600円(3,001円/坪)
賃 料 207,460円(11,000円/坪)
階数 8F
明治安田生命名古屋西口ビル
階数 6F
駅 名古屋駅 1分
所在地 名古屋市中村区椿町15-21
竣工日 1980年3月31日
伏見ベルメゾン
賃 料 135,000円(7,158円/坪)
共益費 16,012円(849円/坪)
階数 4F
駅 伏見駅 3分
所在地 名古屋市中区栄1-14-23
竣工日 1990年9月1日
千種ビル(旧:住友生命千種ビル)
賃 料 205,763円(10,910円/坪)
共益費 59,239円(3,141円/坪)
駅 千種駅 1分
所在地 名古屋市東区葵3-15-31
竣工日 1979年1月31日
第25オーシャンプラザ
階数 5F
駅 赤池駅 1分
所在地 日進市赤池1-3001
竣工日 1988年4月1日
ジブラルタ生命岐阜ビル
広 さ 18.87坪(62.38㎡)
賃 料 160,395円(8,500円/坪)
共益費 43,401円(2,300円/坪)
駅 田神駅 9分
所在地 岐阜県岐阜市岐阜市竜田町2-2
竣工日 1987年8月1日
TOP
お気に入り一覧