受付時間:平日9:00~18:00
MENU
条件から探す
マップから探す
お気に入り物件 お気に入り一覧
052-959-2888
受付時間:平日9:00〜18:00(土日祝休み)
メールフォームからのお問い合わせはこちら
LIST
現在の検索条件
国際センター
いちご錦ファーストビル
広 さ 180.15坪(595.53㎡)
賃 料 要確認
共益費 540,450円(3,000円/坪)
階数 2F
駅 伏見駅 7分国際センター駅 8分丸の内駅 9分
所在地 名古屋市中区錦1-8-8
竣工日 1984年9月30日
マップを表示
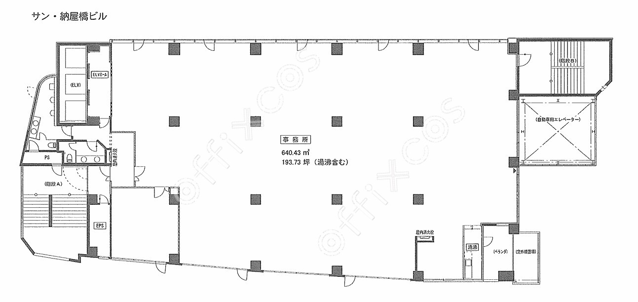
サン・納屋橋ビル
広 さ 193.73坪(640.42㎡)
賃 料 1,317,364円(6,800円/坪)
共益費 387,460円(2,000円/坪)
階数 4F
駅 伏見駅 9分国際センター駅 10分名古屋駅 13分
所在地 名古屋市中村区名駅南1-6-1
竣工日 1986年11月30日
名古屋国際センタービル
広 さ 240.46坪(794.90㎡)
共益費 要確認
階数 25F
駅 国際センター駅 1分名古屋駅 7分
所在地 名古屋市中村区那古野1-47-1
竣工日 1984年6月30日
名古屋第2埼玉ビル
広 さ 306.00坪(1011.56㎡)
賃 料 4,590,000円(15,000円/坪)
階数 7F
駅 国際センター駅 1分名古屋駅 5分
所在地 名古屋市中村区名駅4-2-28
竣工日 1975年12月31日
愛三ビル
広 さ 1221.60坪(4038.34㎡)
階数 2-9F
駅 国際センター駅 7分伏見駅 8分
所在地 名古屋市中村区名駅5-25-1
竣工日 1988年2月1日
広 さ 1289.92坪(4264.19㎡)
階数 1-9F
TOP
お気に入り一覧