DATA
物件情報
川辺318ビル
川辺318ビル
所在地 愛知県名古屋市千種区池下1-4-15
駅 池下駅 1分
竣工日 1991年5月31日
耐震 〇
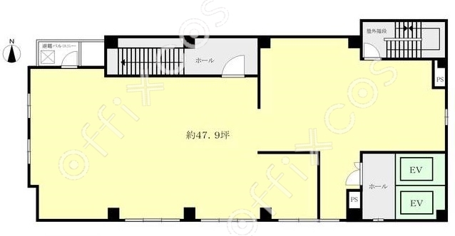
ビル主要設備 個別空調、駐車場、EV2基
川辺318ビル
賃 料 550,000円(11,482円/坪)
共益費 50,000円(1,044円/坪)
敷 金 3ヶ月分
※初期費用についてはお問い合わせください。
部屋主要設備 スケルトン(トイレは残置物の為、入居後の修理費用等は借主負担)
その他 重飲食相談、保証会社加入必須

営業担当からの
コメント
錦通り沿いにある池下駅目の前のビルです。初期費用も抑えられ、お値打ちな物件です。
本ページではビル内の一部の物件の画像を表示しているため、内観や間取り図がご希望の物件と異なる場合があります。
ビル一覧へ戻る