DATA
物件情報
名古屋国際センタービル
名古屋国際センタービル
所在地 愛知県名古屋市中村区那古野1-47-1
駅
国際センター駅 1分
名古屋駅 7分
竣工日 1984年6月30日
耐震 〇
ビル主要設備 セントラル空調(月-金9:00-17:30 土9:00-13:00)、駐車場、EV10基(20人)+荷物用1基、喫煙室、会議室、OA、光ケーブル
| 空きフロア | 広さ | 賃料 | 共益費 | 入居可能時期 | 空室詳細 | |
|---|---|---|---|---|---|---|
| 1階 | 59.77 坪 (197.58㎡) | 要確認 | 要確認 | 現空 | 詳細 |
お気に入り登録 お問い合わせ |
| 11階 | 63.89 坪 (211.20㎡) | 要確認 | 要確認 | 2026/01/01 | 詳細 |
お気に入り登録 お問い合わせ |
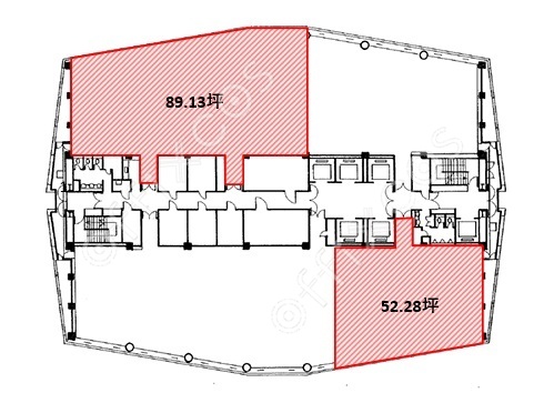
| 24階 | 52.28 坪 (172.82㎡) | 要確認 | 要確認 | 2025/12/01 | 詳細 |
お気に入り登録 お問い合わせ |
| 24階 | 89.13 坪 (294.64㎡) | 要確認 | 要確認 | 2026/05/01 | 詳細 |
お気に入り登録 お問い合わせ |
| 25階 | 240.46 坪 (794.90㎡) | 要確認 | 要確認 | 相談 | 詳細 |
お気に入り登録 お問い合わせ |
| 26階 | 118.05 坪 (390.24㎡) | 要確認 | 要確認 | 相談 | 詳細 |
お気に入り登録 お問い合わせ |
広さ
59.77 坪 (197.58㎡)
賃料
要確認
共益費
要確認
入居可能時期
現空
広さ
63.89 坪 (211.20㎡)
賃料
要確認
共益費
要確認
入居可能時期
2026/01/01
広さ
52.28 坪 (172.82㎡)
賃料
要確認
共益費
要確認
入居可能時期
2025/12/01
広さ
89.13 坪 (294.64㎡)
賃料
要確認
共益費
要確認
入居可能時期
2026/05/01
広さ
240.46 坪 (794.90㎡)
賃料
要確認
共益費
要確認
入居可能時期
相談
広さ
118.05 坪 (390.24㎡)
賃料
要確認
共益費
要確認
入居可能時期
相談
名古屋国際センタービル
賃 料 要確認
共益費 要確認
敷 金 12ヶ月分
※初期費用についてはお問い合わせください。
部屋主要設備 セントラル空調
その他 事務所仕様(ロレックス撤去)
名古屋国際センタービル
賃 料 要確認
共益費 要確認
敷 金 12ヶ月分
※初期費用についてはお問い合わせください。
部屋主要設備 セントラル空調、スケルトン(居ぬきも相談)
その他 分割不可、クリニック可
名古屋国際センタービル
賃 料 要確認
共益費 要確認
敷 金 12ヶ月分
※初期費用についてはお問い合わせください。
部屋主要設備 セントラル空調、スケルトン(居ぬき(中華)も相談)
その他 分割不可 クリニック可
営業担当からの
コメント
名古屋駅からも地下街で繋がっており、通勤や移動に大変便利な物件です。貸会議室や貸ホールを完備しており、設備も充実しています。
本ページではビル内の一部の物件の画像を表示しているため、内観や間取り図がご希望の物件と異なる場合があります。
ビル一覧へ戻る