DATA
物件情報
丸の内シンワビル
丸の内シンワビル
所在地 愛知県名古屋市中区丸の内3-22-12
駅 久屋大通駅 3分
竣工日 1990年8月1日
耐震 〇
ビル主要設備 定借2年(再契約可)、敷地内駐車場(高さ155×幅182以内)、EV1基、個別空調、防犯カメラ、トイレ・給湯(共用)、専用ごみ置き場、
丸の内シンワビル
賃 料 114,480円(11,987円/坪)
共益費 要確認
敷 金 4ヶ月分
※初期費用についてはお問い合わせください。
部屋主要設備 定借2年(再契約可能)、個別空調
その他 601 定借2年、電気基本料5,600円、清掃ゴミ処理費2,000円、看板シート作成費19,800円円、連帯保証人必須、保証会社利用必須
営業担当からの
コメント
久屋大通駅近くのコンパクトオフィスです。初期費用を抑えたい方にもオススメです。
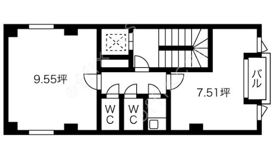
本ページではビル内の一部の物件の画像を表示しているため、内観や間取り図がご希望の物件と異なる場合があります。
ビル一覧へ戻る