DATA
物件情報
東進名駅ビル(旧:日石名駅ビル)
東進名駅ビル(旧:日石名駅ビル)
所在地 愛知県名古屋市中村区名駅2-45-14
駅
名古屋駅 2分
名古屋駅 2分
竣工日 1997年1月1日
耐震 要確認

営業担当からの
コメント
大通り沿いに面しているため、視認性が高い物件です。名古屋駅から徒歩2分の駅近物件です。
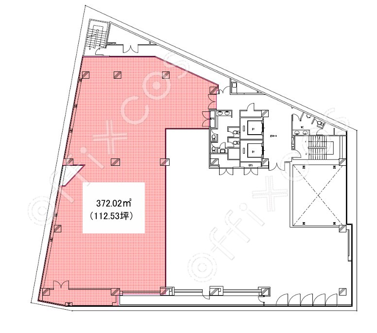
本ページではビル内の一部の物件の画像を表示しているため、内観や間取り図がご希望の物件と異なる場合があります。
ビル一覧へ戻る