DATA
物件情報
Tower of Strings
Tower of Strings
所在地 愛知県名古屋市中区丸の内1-7-25
駅 丸の内駅 3分
竣工日 2009年5月31日
耐震 〇
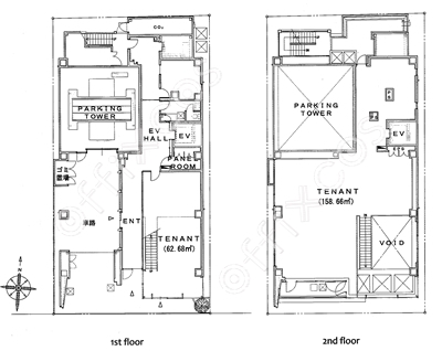
ビル主要設備 駐車場、EV1基、個別空調、OA、男女別トイレ・給湯(共用)、オートロック、防犯カメラ、機械警備(セコム)
Tower of Strings
賃 料 1,070,895円(15,500円/坪)
共益費 172,725円(2,500円/坪)
敷 金 7ヶ月分
※初期費用についてはお問い合わせください。
部屋主要設備 スケルトン
その他 1年以内の解約は違約金(賃料・共益費1ヶ月分)かかる、火災保険加入
営業担当からの
コメント
丸の内駅より徒歩3分 美築ビル。なかなか空きがでないデザイナーズビルです。
本ページではビル内の一部の物件の画像を表示しているため、内観や間取り図がご希望の物件と異なる場合があります。
ビル一覧へ戻る